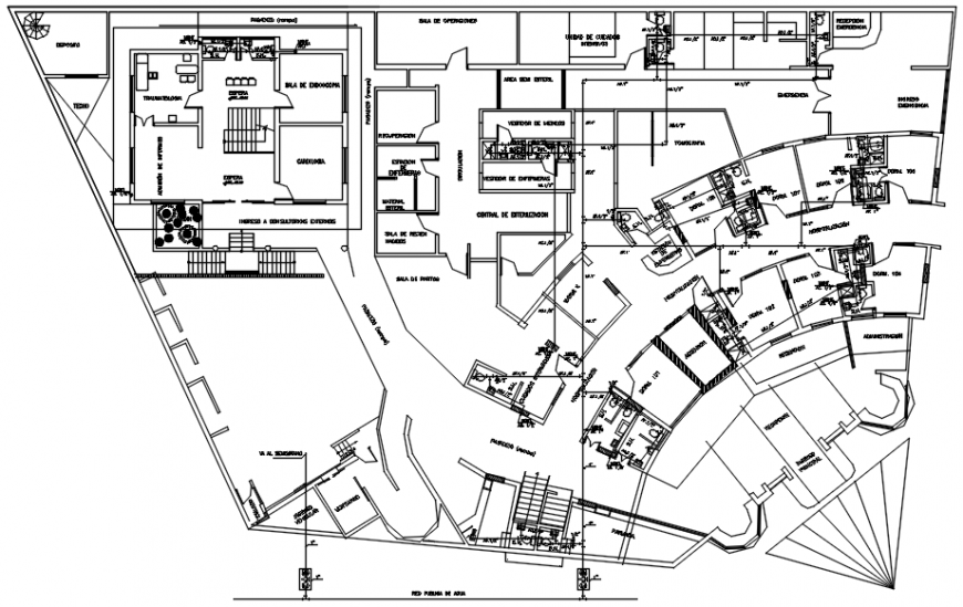
Ground floor plan of architectural view of clinic in AutoCAD
Description
Ground floor plan of architectural view of clinic in AutoCAD plan include detail of area of circulation and distribution of area with door and window position with clinic area and necessary view and dimension.
Uploaded by:
Eiz
Luna

